В Орле презентовали проект благоустройства скверов Гуртьева и Бунина

В Орле презентовали проект благоустройства скверов Гуртьева и Бунина
Фото: администрация города орла

В Орле поделились деталями проекта, который направлен на благоустройство скверов, названных в честь Л.Н. Гуртьева и И.А. Бунина. На заседании общественной комиссии заместитель гендиректора ООО «ТСК Альянс» Ольга Воронина представила основные элементы этих проектов.

Отмечается, что при разработке проекта сквера имени Л.Н. Гуртьева архитекторы изучили архивные материалы, чтобы максимально воссоздать исторический облик общественного пространства. Однако они также учли современные реалии города. Например, дорожно-тропиночная сеть сквера повторяет планировку, отраженную на старых фотографиях, и учитывает привычные для жителей траектории движения. А одним из современных решений стала  подсветка деревьев вдоль центральной аллеи и самого памятника Гуртьеву. Также предусмотрено устройство велодорожек и велопарковок. Для маломобильных людей предусмотрены плавные спуски и пандусы, а ширина дорожек составит не менее двух метров.

Вдоль всех тропинок будут установлены фонари, чугунные скамейки и урны, все в едином стиле. Кроме того, будут заменены гранитные плиты у основания памятника, а шесть малых клумб станут одной большой круглой. Это не только дополнит общую эстетику, но и облегчит уборку аллеи в зимний период.

Оценочная стоимость работ составляет около 71 миллиона рублей, сообщила Ольга Воронина.

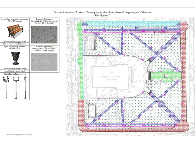
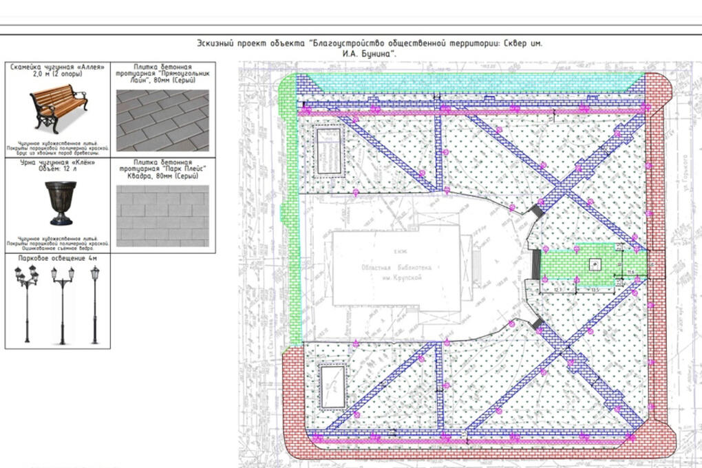
Благоустройство сквера имени И.А. Бунина также будет включать установку аналогичных фонарей и лавочек вдоль тропинок. Стоимость благоустройства сквера имени И.А. Бунина оценивается в 32 миллиона рублей.

Что еще почитать

В регионах

Новости региона

Все новости

Новости

Самое читаемое

...
Сегодня
...
...
...
...
Ощущается как ...

Автовзгляд

Womanhit

Охотники.ру